センチュリー21リアルトラスト > リアルトラストの物件一覧 > 物件詳細
子育て世代にうれしい、小学校まで徒歩約7分の立地。
周辺は車通りも少ない閑静な住宅街の生活環境が魅力です。
建築時にはセットバックを要しますが、その分すっきりとした街並みが保たれ、住環境も◎。










(※元利均等方式 金利5.00%まで ※返済年数5~50年まで入力できます)
(※ボーナスは年2回で計算しています。1000万円まで入力できます)
(※物件購入時、その他諸費用が発生する場合がございます)
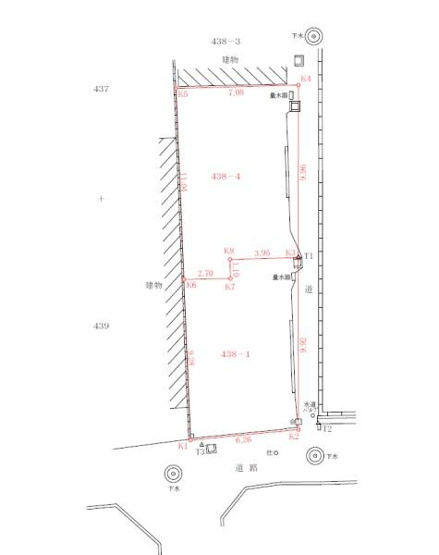
| 所在地 | 兵庫県姫路市八代 | ||
|---|---|---|---|
| 交通 | |||
| 価格 | 871万円 | ||
| 土地の敷金/保証金 | -/- | 借地料/借地期間 | -/- |
| 土地面積(坪数) | 133.80㎡(40.47坪) | 坪単価 | 21.5万円 |
| 私道負担面積/セットバック | -/要 | 高圧線下面積 | - |
| 傾斜地部分面積 | - | 路地状敷地 | - |
| 土地権利 | 所有権 | 接道状況 | 二方(南 公道 2.6m) |
| 都市計画 | 市街化区域 | 用途地域 | 第一種中高層住居専用 |
| 建築条件 | 無 | 地目/地勢 | 宅地/- |
| 建ぺい率 | 60% | 容積率 | 200% |
| 総区画数 | - | 販売区画数 | - |
| 国土法届出要否 | 不要 | その他の法令上の制限 | 高度地区 |
| 取引態様 | 専属専任媒介 | 現況 | 更地 |
| 引渡時期 | 相談 | 引渡条件 | 現況渡 |
| 最適用途 | 住宅用地 | ||
| 物件番号 | 95739308 | 取引条件の有効期限 | 2025年11月26日 |
| 設備条件 |
|
||
| 備考 |
子育て世代にうれしい、城北小学校まで徒歩約7分の立地。 周辺は車通りも少ない閑静な住宅街で、のびのびとした生活環境が魅力です。 敷地は約40坪の更地で、自由設計も可能。建築時にはセットバックを要しますが、 その分すっきりとした街並みが保たれ、住環境も◎。 マイホーム計画のスタートにぜひご検討ください。 ◇弊社について ・センチュリー21グループ企業(※センチュリー21の加盟店は全店舗独立・自営です) ・お客様の希望に沿う物件をお探しします! →現地/物件見学(約30分~) →ご希望条件のご相談(約30分~) →希望物件を探すお手伝い(約1営業日~約3営業日) お気軽にお問い合わせください! |
||
| 取扱会社 |
|
||
| QRコード |
このQRコードを読み取ることで、スマホでも物件情報を確認できます。 |
||
※地図上に表示される物件の位置は付近住所に所在することを表すものであり、実際の物件所在地とは異なる場合がございます。
姫路市八代の売地に関するこだわり条件から探す
姫路市の町名から探す